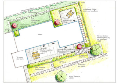
Hausgarten Erweiterung
In einem Bestandsgarten mit Waldcharakter soll dem Wohnhaus im hinteren Gartenbereich ein moderner Anbau angefügt werden. Da das Gelände vom Haus weg ansteigt, wird der Anbau in das Gelände hineingebaut. Die Außenanlage wird dementsprechend angepasst und es entsteht somit ein individueller, vertiefter Gartenbereich, der direkt an das Hauptgebäude und den Anbau anschließt. Angrenzende Bestandsbäume werden als kleine Sitzbereiche in den Entwurf mit eingearbeitet und Höhenunterschiede als Sitzgelegenheit genutzt. Schattenverträgliche Pflanzen runden den Entwurf ab und integrieren den Anbau harmonisch in das Gesamtbild.
